Goed onderhouden garagecomplex

Bel op 0474 567176 voor cijfers/informatie/bezichtiging

Dit garagecomplex is discreet gelegen in de Lindenlaan 57 Oostende, achter residentie Lindenhof.
Het gebouw werd gerenoveerd met geïsoleerde dakpanelen in 2018.
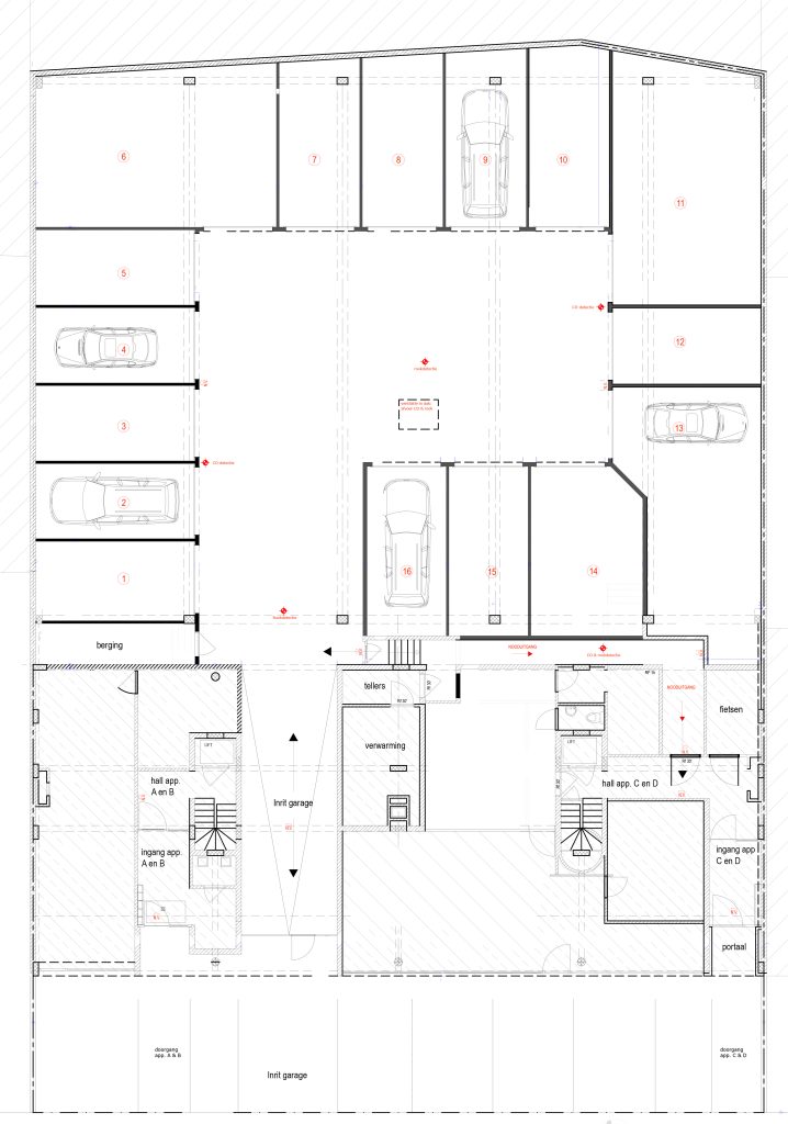
In 2019 werd er verbouwd naar een garagecomplex met 16 ruime garages en een berging (plan bij foto’s). Alle garageboxen zijn continue verhuurd.

De garages zijn ruim en er is camerabewaking van de algemene delen.
De hoofdpoort kan op afstand (vanaf thuis) bediend worden. 

In het complex kun je vlot met een bestelwagen binnen rijden om te laden en lossen.

Alle garages beschikken over een eigen elektriciteitsteller, automatische sectionaalpoort met afstandsbediening + een gunstig asbestattest.
Al deze garages beschikken ook over een eigen kadastraal nummer en kunnen apart verkocht worden. Alle administratie hiervoor is reeds voldaan en betaald.

Dit garagecomplex wordt zonder syndicus beheerd en is onafhankelijk van het appartementsgebouw vooraan.

De Lindenlaan is de achterkant van de woonblokken op de drukke Torhoutsesteenweg. Op deze Lindenlaan is er een groot vergund vastgoedproject dat binnenkort wordt gestart. Dit zijn woonentiteiten + een medische groepspraktijk voor dokters . De ontsluiting hiervoor gebeurd langs de Torhoutesteenweg. Dit zal een positieve impuls geven aan deze buurt. 

Kadastraal inkomen volledig complex 1500€

Poortopening crawfordpoort hoofdingang: 254 Cm. Hoog en Breedte 345 cm.
Poortopening garageboxen 250cm x250cm

foto’s

video’s

video 1 : Algemene voordelen investering garagecomplex

Video 2 : algemeen overzicht garagecomplex

Video 3: autos stofvrij en startklaar stockeren

video5: startklaar stockeren